White Tower
Vivi Padova nello stile
La White Tower è un edificio iconico che si sviluppa su 10 piani fuori terra.
Nei primi tre, ospita ampi spazi commerciali, ideali per dare vita alle tue future opportunità di business. Ogni locale è progettato per offrire ambienti moderni e funzionali, interamente dedicati alle attività professionali.
Il progetto
Le nostre unità commerciali / direzionali
La White Tower offre soluzioni commerciali e direzionali di altissimo livello, progettate per soddisfare le esigenze di chi cerca spazi moderni, funzionali e personalizzabili.
Tutte e tre le unità sono modulari: possono essere divise o accorpate a seconda delle necessità. Inoltre, sono progettate secondo i più elevati standard di efficienza energetica e già dotate di impianti di raffrescamento e riscaldamento, garantendo comfort e sostenibilità.
Piano interrato: dedicato ai garage, riservati a 20 esclusive ed eleganti unità abitative che si sviluppano dal piano terzo al piano nono.
La White Tower gode anche della presenza di numerosi parcheggi pubblici nelle vicinanze, offrendo un vantaggio significativo per i clienti e i visitatori che frequenteranno la struttura. Questa comodità rende gli spazi commerciali e direzionali ancora più accessibili e funzionali.
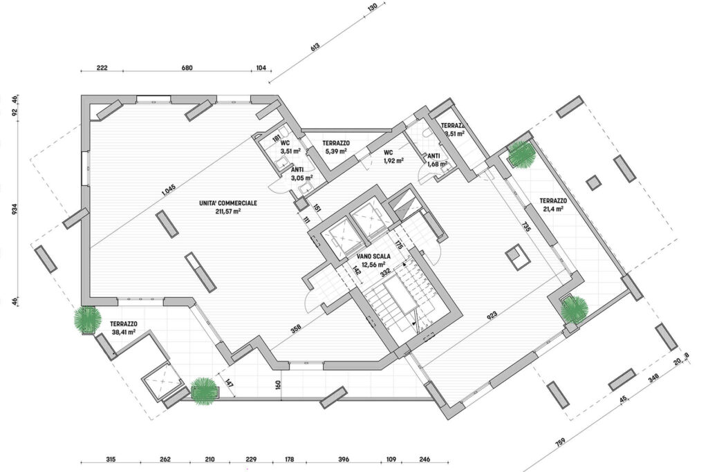
Piano terra
Un’ampia unità commerciale/direzionale con grandi vetrine, ideale per valorizzare ogni tipo di attività. Le finiture possono essere personalizzate per rispecchiare al meglio l’immagine del vostro brand, offrendo massima flessibilità.
Piano primo
Uno spazio direzionale esclusivo, servito da un ascensore dedicato, con una splendida terrazza che aggiunge un tocco di eleganza e comfort. Anche in questo caso, vi è la possibilità di personalizzare gli ambienti per adattarli alle esigenze aziendali.
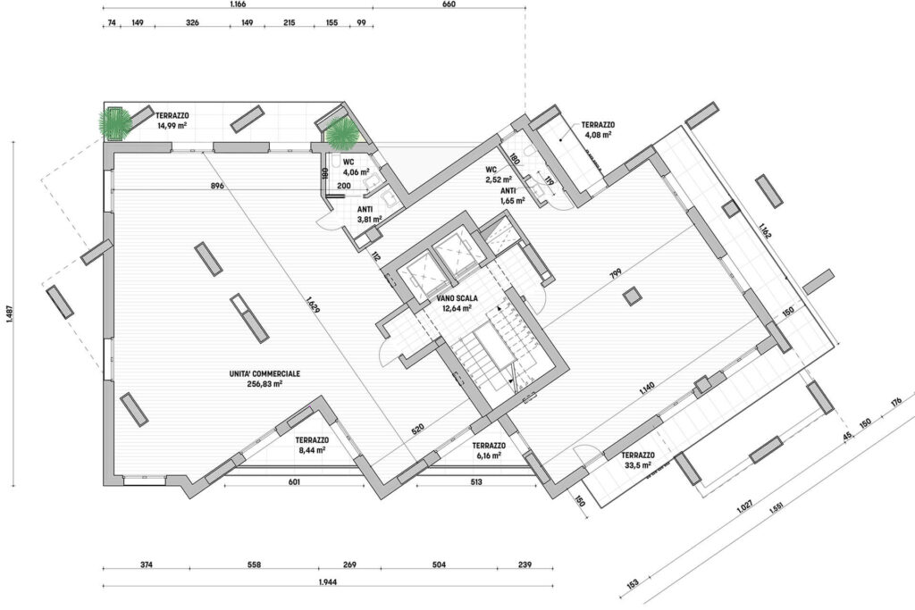
Piano secondo
Altra unità direzionale, anch’essa dotata di una terrazza spaziosa e di finiture completamente personalizzabili, per creare un ambiente di lavoro unico e su misura.
La città in un passo
L’area sulla quale sorgerà la White Tower è ubicata tra via Ostiala Gallenia e via Paolo Sambin a Padova. Situata in posizione centrale e comoda, la zona offre facile accesso a tutti i servizi essenziali, strutture scolastiche e un supermercato di recente realizzazione. La posizione è strategica anche dal punto di vista della viabilità e dei trasporti pubblici, assicurando un collegamento rapido e agevole con il resto della città.
- Posizione centrale di fronte alle mura di Padova
- A pochi passi da via Beato Pellegrino – Chiesa degli Eremitani
- A 5 min da Corso Milano – Piazza Insurrezione
- Comodo accesso alla tangenziale – a 5 min da Padova ovest
- Supermercato nelle vicinanze
- Vicinanza alle scuole
- Vicinanza all’universita’ di Padova
- Servizi pubblici